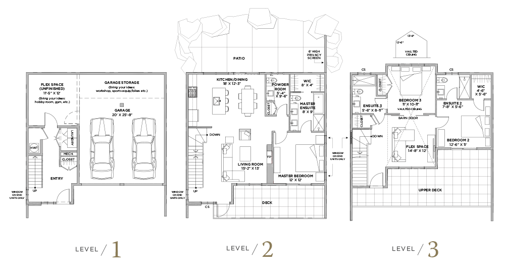
Cypress Mews
|
Size |
1,755 SQ.FT |
|
Bedrooms |
3 |
|
Bathrooms |
3.5 |
Viewpoints, measurements and floor plans are approximate only. The Developer reserves the right to modify the building design, floor plans, suite features and specifications to accommodate architectural, engineering, interior design and supply considerations.

















